Bergavägen 14
Mörrum

Bergavägen 14

1 100 000 kr   4 rum   106 kvm
Bergavägen 14
1 100 000 kr
Bostadstyp
Villa
Byggnadstyp
1-planshus med källare
Fastighetsbeteckning
KARLSHAMN MÖRRUM 44:12
Antal rum
4 rum
Boarea/biarea
106 kvm, 90 kvm
Tomtarea
638 kvm
Ort/område
Mörrum, Mörrum
Byggår
1960
Visning

Välkommen att kontakta mäklaren för visning.

Torbjörn
Torbjörn Bäckström Jonson
Fastighetsmäklare

Välplanerad 60-talsvilla med bergvärme, uppdateringar och garage på lugnt läge i Mörrum

Välkommen till Bergavägen 14 – en välplanerad villa från 1960 med bra ytor och energieffektiv uppvärmning via bergvärme (installerad 2002). Här bor du på en lättskött tomt om 638 kvm i ett trivsamt och etablerat område i Mörrum


Bostaden erbjuder 106 kvm boarea samt 90 kvm biarea, vilket ger gott om plats för både familjeliv, hobby och förvaring. Planlösningen är klassisk och funktionell med tre sovrum samlade i en mer privat del av huset, vilket passar bra för barnfamiljen eller för dig som vill ha ett extra rum till kontor eller gäster.

Vardagsrummet är rymligt och har plats för både soffgrupp och matsalsmöbel. Här finns bra möjligheter att skapa en trivsam samlingsplats för både vardag och umgänge.

Köket ligger centralt i huset med bra arbetsytor och kontakt med de sociala ytorna. En innervägg mellan kök och matplats har tagits bort, vilket ger en öppnare och mer social känsla.

Badrummet renoverades omkring 1997. Nuvarande ägare köpte huset 1996 och har sedan dess utfört löpande underhåll. Bland annat har isolerglasfönster installerats 2013, garageporten byttes 2021 och ny takpapp lades på garagebyggnaden omkring 2020. I källaren har väggar och betonggolv målats med färg avsedd för murade och putsade ytor.

Huset värms upp via bergvärme från 2002, vilket ger en stabil och ekonomisk uppvärmningslösning. Fiber finns installerat.

Utöver detta finns garage med smidig access samt bra förvaringsmöjligheter i husets biarea.

Tomten om 638 kvm är lättskött och erbjuder utrymme för lek, odling eller en trevlig uteplats.

Överlåtelsebesiktning är utförd och finns att ta del av under dokument.

Varmt välkommen att upptäcka möjligheterna på Bergavägen 14.

Fakta
KARLSHAMN MÖRRUM 44:12
Villa. Småhusenhet, bebyggd.
Bergavägen 14, 37534 Mörrum
Mörrum
Karlshamn
106 kvm enligt lantmäteriet
90 kvm
4 st
Tomtarea 638 m². Tomtarealuppgifter enligt Lantmäteriet.
Planer och bestämmelser: Mörrum, Byggnadsplan (Beslutsdatum: 1960-10-18, Senast ändrad: 2022-04-11).
Rättigheter last: Avtalsservitut: VATTENLEDNING MM - SE BESKRIVNING.
Avtalsservitut: LEDNING MM - SE BESKRIVNING.
Avtalsrättigheter: Avtalsservitut LEDNING MM.
Avtalsservitut VATTENLEDNING MM.
Ekonomi
1 100 000 kr, utgångspris.
Taxeringsvärdet är 1 115 000 kr varav byggnadsvärde 844 000 kr. Typkod Småhusenhet, bebyggd. Taxeringsår: 2024.
8 363 kr/år
Totalt 625 000 kr.
Driftkostnader
4 777 kr. ICA Husförsäkring
21 636 kr
8 325 kr
4 234 kr
1
38 972 kr/år
Driftkostnaden är ca 38 972 kr/år i nuvarande hushåll fördelat på: försäkring 4 777 kr, elkostnad 21 636 kr, vatten/avlopp 8 325 kr och renhållning 4 234 kr.
Antal personer i hushållet: 1.
Försäkring: ICA Husförsäkring.
Fastighetsskatt/-avgift 8 363 kr/år tillkommer.
Byggnad
1-planshus med källare
1960
Källare, krypgrund
Trä, murad källare
Målad tegel, träpanel
Sadeltak klätt med betongpannor
Isolerglasfönster, 2-glas kopplade till källaren
Kommunalt vatten året om
Kommunalt avlopp
Energideklaration
Energideklaration är utförd (2026-03-04)
43 kWh/m² och år
85 kWh/m² och år
C
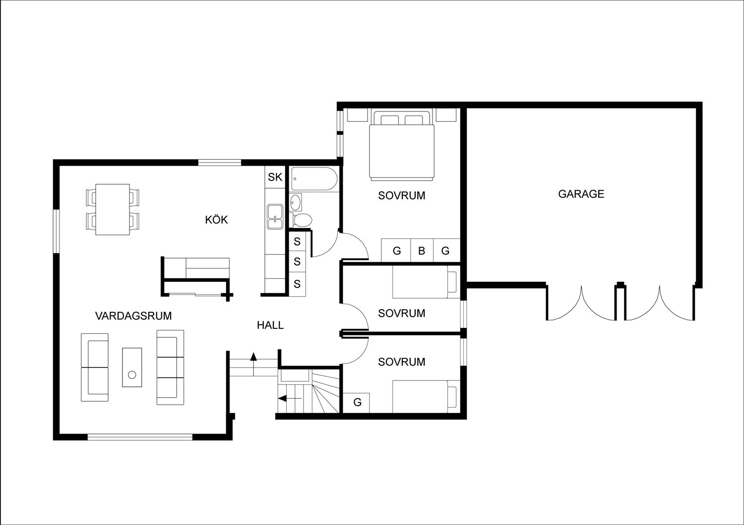
Rumsbeskrivning

Entré / Hall
Välkomnande entré med plats för avhängning. Hallen fungerar som bostadens nav och leder vidare till såväl de sociala ytorna som den mer privata delen av huset.

Vardagsrum
Rymligt och lättmöblerat vardagsrum med generösa ytor för både soffgrupp och matsalsmöbel. Stora fönsterpartier ger fint ljusinsläpp och skapar en trivsam samlingsplats för familj och gäster.

Kök
Praktiskt och centralt placerat kök med bra arbetsytor och goda förvaringsmöjligheter. Här finns plats för matbord och naturlig kontakt med vardagsrummet, vilket ger en social och funktionell planlösning.

Sovrum 1
Större sovrum med plats för dubbelsäng och förvaring. Lämpligt som föräldrasovrum.

Sovrum 2
Bra sovrum med plats för säng, skrivbord och förvaring. Passar utmärkt som barnrum eller kontor.

Sovrum 3
Ytterligare sovrum i bra storlek, flexibelt för barnrum, gästrum eller arbetsrum.

Badrum
Badrum renoverat 1997, utrustat med wc, handfat och dusch/bad (anpassa efter faktisk utrustning).

Klädkammare / Förvaring
Praktiska förvaringsutrymmen i anslutning till sovrumsdelen som förenklar vardagen.

Källare / Biarea
Generösa biytor om ca 90 kvm med goda förvaringsmöjligheter, hobbyutrymmen samt tvättmöjligheter (anpassa efter faktisk planlösning).

Garage
Garage med nyare garageport (2021) och smidig access.

Planritning
Floor6_5_3
Karta